Купить золоуловитель ЗУ-2-2 в Казахстане

  • Компактный золоуловитель для твердотопливных котлов
  • Может устанавливаться как сразу за котлом, так и на улице
  • Универсальная конструкция позволяет организовать выход справа или слева, в зависимости от компоновки газоходов
Изготовим
под заказ
Цена с НДС на золоуловитель ЗУ-2-2 с доставкой в
от 0 рублей
Условия в
В наличии на складе
Доставка ТК по России и Казахстану
Безналичный расчет
Есть в наличии
Золоуловитель ЗУ 2 2
Золоуловитель ЗУ-2-2
Котел с золоуловителем ЗУ 2 2
Котел КВр с золоуловителем ЗУ-2-2
Устройство золоуловителя ЗУ 2 2
Устройство золоуловителя ЗУ-2-2
Изготовление золоуловителя ЗУ 2 2
Изготовление золоуловителей ЗУ-2-2
Производство золоуловителей ЗУ 2 2
Производство золоуловителей ЗУ-2-2
Золоуловитель ЗУ 2 2
Котел с золоуловителем ЗУ 2 2
Устройство золоуловителя ЗУ 2 2
Изготовление золоуловителя ЗУ 2 2
Производство золоуловителей ЗУ 2 2
Видеообзор
Производительность 1200 м³/ч
Применяемость 0.2-0.3 МВт
Технические
характеристики
Описание
товара
Сертификаты
и гарантии

Технические характеристики

Тип циклона Золоуловитель
Вид ЗУ
Марка ЗУ-2-2
КПД 80 %
Производительность 1200 м³/ч
Аэродинамическое сопротивление 700 (70) Па (мм. вод. ст.)
Допустимая температура газов на входе до 280 °C
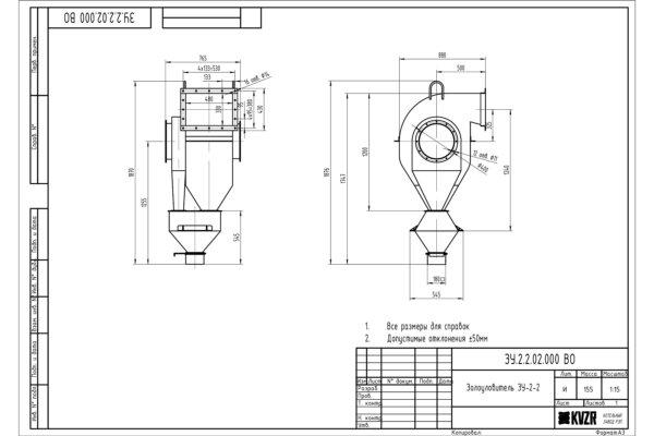
Сечение входного отверстия 330х480 мм
Диаметр выходного отверстия 355 мм
Объем бункера накопителя 0.06 м³
Габаритные размеры: длина, ширина, высота 880х765х1880 мм
Направление газового потока левое
Масса 130 кг
Применяемость 0.2-0.3 МВт
Чертеж золоуловителя ЗУ-2-2
Золоуловитель ЗУ-2-2 чертеж

Золоуловитель ЗУ-2-2 в Казахстане

Золоуловители ЗУ-2-2 представляют собой горизонтальный циклон, предназначенный для сухой инерционной очистки газов от летучей золы (более 50 мкм) с максимальной температурой 260°С. Золоуловители ЗУ 2 2 могут устанавливаться, как сразу за котлом, так и за пределами котельной на группу котлов. Эксплуатируются в помещениях и вне помещений котельных под навесом при температуре окружающего воздуха от - 60°С до +40°С.

Золоуловитель ЗУ 2 2 относится к типу горизонтального циклона по расположению оси очищаемого потока газа. Дымовой газ поступает во входное отверстие и движется между криволинейными стенками корпуса. Под действием гравитационных сил из потока очищаемого газа выделяются твердые частицы, которые накапливаются в бункере. Зола удаляется через шибер снизу. Очищенный газ отводится из золоуловителя по патрубку через круглое выходное отверстие на боковой стенке.

В комплект поставки золоуловителей входит: бункер-накопитель и корпус золоуловителя.

Золоуловитель ЗУ-2-2 применяется для улавливания золовых отложений после водогрейных котлов КВр и КВм мощностью 0.2 МВт, 0.25 МВт, 0.3 МВт.

Купить золоуловители ЗУ 2 2

Для того чтобы купить золоуловители ЗУ-2-2, в Казахстане вы можете сделать заявку в отдел сбыта по телефону 8-800-700-06-43, либо оформить заявку онлайн. Золоуловители ЗУ 2 2 транспортируются автотранспортом и ж/д контейнерами. Для расчета стоимости доставки заполните заявку и инженеры консультанты проведут расчет стоимости доставки до вашего города или населенного пункта.

Сертификат для золоуловителей
Сертификат на золоуловители

Отзывы о продукции

Другая похожая продукция

124 000 ₽
Цена по
запросу
Цена по
запросу